无锡瑞盈电力环保设备有限公司
邮 箱:ryhb70@163.com
地 址:无锡市滨湖区胡埭镇翔鸽路26号申新工业园


一、脉冲袋式除尘器-概述
脉冲袋式除尘器采用过滤的方法将含尘土气体中的颗粒阻流在布袋纤维织物上,从而净化气体。适宜捕集非粘结性、非纤维粉尘,如粉煤灰、水泥等,除尘效率稳定,结构简单,投资费用低,操作简单易上手,管理维护方便等。
脉冲袋式除尘器采用高压0.4MPa-0.7MPa脉冲气流反吹来清理除尘器过滤布袋上的积灰,通过调节脉冲周期和脉冲宽度来改变喷吹操作的持续时间和间隔时间,使滤袋保持良好的过滤状态,因此过滤风速高,除尘效果稳定,同时采用压缩空气反吹来清灰时滤袋无机械运动,滤袋使用寿命长。
袋式收尘器对气体中的湿度较敏感,亲水性粉尘和气体湿度过大时易堵塞纤维缝隙,使用时会受到限制。我厂的脉冲除尘器,采用新型针刺涤纶毡,工作温度高,布袋强度高, 使用寿命长,可布置于粉料仓和灰库的顶部,工作时从除尘器布袋上清理下来的粉尘会直接落入粉料仓。
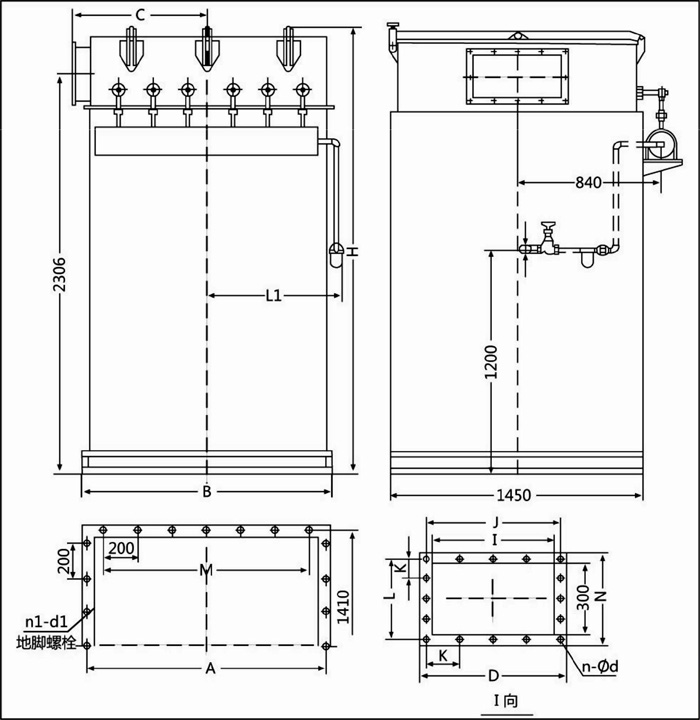
二、脉冲袋式除尘器-简介
脉冲陈尘器由三个部分组成:
1、上箱体:包括盖板,排气口等;
2、下箱体:包括机架,滤袋组件等;
3、清灰系统:包括电磁脉冲阀、脉冲信号控制器等。
三、脉冲袋式除尘器-主要参数


四、脉冲袋式除尘器-使用及维护保养规程
在设备使用前,应认真阅读说明书,熟悉和理解执行规程的各要点容。
1、压缩机气源压力需在0.5-0.7Mpa以上。
2、检查分气包管,脉冲阀结合处,在运输、安装后是否渗气,有即应排除,打开顶门盖,检查滤袋压紧是否密封。
3、参照脉冲喷吹控制仪说明书:
①接通电源;
②调节所需脉冲宽度和电磁脉冲阀的随政周期;
③调节所需脉冲间隔-2相邻电磁脉冲阀起动的间隔时间。
4、调节所需脉冲周期一完成一个循环过程所需时间:
①脉冲宽度调节:范围在0.02~0.2秒;
②脉冲间隔调节:范围在2~60秒;
③脉冲周期调节:应根据实际清灰要求进行。
4、灰库内灰量达到库容0.8以上时,应严禁进灰。
5、每班检查滤袋,保持完好,如有发现破损情况,应立即更换。
6、滤袋使用六个月以上时阻力变大,反复清灰也不能降时必须卸下,用清水洗净袋上积灰后晾干,查无破损后重新装上。
7、除尘器使用后,应有专人负责保养,每天检查运行情况,发现故障及时排除,并注意做好除尘器周围的清洁工作。
